Shummard Close, Biddick Woods, Houghton Le Spring, Tyne and Wear, DH4 7TP

Biddick Woods, Houghton Le Spring, Tyne and Wear   See map

£450,000 Offers Over
  • Ref: GOL250335
  • Availability: For Sale
  • Bedrooms: 4
  • Bathrooms: 3
  • Reception Rooms: 2
  • Parking: Double Garage
  • Council Tax Band: E
  • Tenure: Freehold
  • Make Enquiry
  • Floorplan
  • View Brochure
  • View EPC
  • Virtual Tour

Property Summary

Beautiful Family Home In An Exclusive Estate! This impressive four bedroom detached property, located in the highly sought-after and exclusive cul-de-sac of Shummard Close, Biddick Woods, is welcomed to the sales market by Jill Moore Sales & Lettings. With a large private driveway, double detached garage, a stunning master bedroom with en-suite and enclosed south facing private rear garden, this superb property certainly is a gem! Viewings are paramount!

Full Details

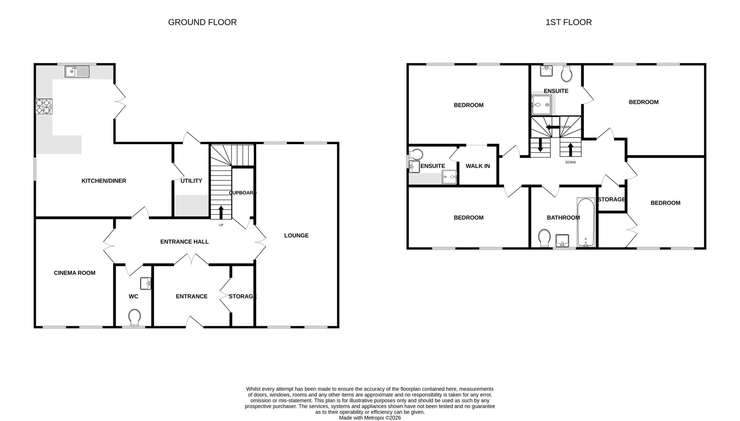
Entrance Porch
Enter through composite double glazed door into large porch area with built in storage space, tiled floors, neutral walls and internal double doors leading into the main hallway.

Entrance Hall
The welcoming hallway space is complete with tiled flooring, neutral walls, carpeted stairs lead to first floor and doors off to lounge, kitchen/diner, cinema room, w/c and storage cupboard.

W/C 1.02m x 1.45m
The W/C offers neutral walls, hand wash basin, double glazed window and toilet.

Lounge 3.15m x 7.47m
The spacious lounge features double glazed dual aspect windows which flood the space with natural light, with radiator, neutral walls and floors.

Cinema Room/Reception Room 3.18m x 3.6m
The good-sized second reception room currently used as a home cinema, is generous in size and offers double glazed windows, neutral walls, tiled flooring, flooring and radiator.

Kitchen/Diner 4.3m x 7.24m
The perfectly presented open plan kitchen/diner offers neutral walls and floors, double glazed windows, doorway into utility and radiator. The kitchen area is complete with neutral base and wall units providing ample storage and housing integrated appliances such as hob, oven, extractor and dishwasher. Space/plumbing for fridge freezer also features, along with double glazed window, sink with mixer tap and French doors leading out into the rear garden.

Utility Room 1.83m x 1.68m
The utility space offers additional base and all units providing ample storage with space/plumbing for washer/dryer. Double glazed UPVC door leads out into the rear garden.

Bedroom 3 2.92m x 3.66m
The third spacious double bedroom is complete with neutral walls, built in storage with double doors, carpet to the floor and double glazed window.

Bedroom 4 2.2m x 4.42m
The fourth bedroom is generous in size and offers neutral walls, carpet flooring, two double glazed windows and radiator.

Bedroom 2 3.2m x 3.96m
The second good-sized double bedroom is complete with neutral walls, carpet to the floor, double glazed window, radiator and has access to its own full en-suite.

En-suite 1.88m x 1.74m
The en-suite offers part-tiled walls, walk in shower cubicle, hand wash basin, toilet, towel rail/radiator and double glazed window.

Master Bedroom 2.97m x 4.37m
The master bedroom is beautifully presented with neutral walls, carpet to the floor, radiator, double glazed window to the rear aspect of the property and has access to its own walk in wardrobe space with bespoke fitted storage which in turn leads into a full en-suite.

En-suite 1.35m x 2.06m
The en-suite offers neutral fully-tiled walls and floors, hand wash basin, w/c, towel rail/radiator, double glazed window and large double walk in shower cubicle.

Family Bathroom
The recently upgraded family bathroom is complete with neutral tiled walls and floors, double glazed privacy windows, towel rail/radiator, bath with mixer shower, hand wash basin and w/c.

External
To the rear, a well maintained private south facing enclosed rear garden complete with natural grass section, pergola structure and paved pathway which leads round down the side of the property to the front via entrance/exit gate. The front, a large private driveway provides ample space for multiple vehicles and leads up to detached double garage. Garage features two automated roller shutter doors and EV charging point.

Location
The property is found within Shummard Close, a highly sought-after and quiet area of the Biddick Woods Estate, Houghton-Le-Spring, offering well respected schools, shops and restaurants/pubs within walking distance. Woodland walks through the Lambton Estate are also on the doorstep, perfect for dog walking and running. Commuting into larger cities like Sunderland, Durham and Newcastle is made quick and easy via the A1/A1231/A19 major roads close by. The property also benefits from great public transport links being close to a major bus route.

Disclaimer
DISCLAIMER
Your home is at risk if you do not keep up repayments on your mortgage or other loans secured on it. MORTGAGE ADVICE It is now a legal requirement under the Estate Agents Act 1991, to establish what mortgage, if any, is required and to confirm the applicants ability to obtain this finance. If you need any help or advice over obtaining a mortgage, our mortgage department will be pleased to help and advise you on all Building Society or Bank mortgages without obligation. This service is available even if you are not buying via ourselves. Written quotations available on request. There is no charge for this service. PLEASE NOTE Please note that all sizes have been measured with an electronic measuring tape and are approximations only. Under the terms of the property miss-descriptions act we are obliged to point out that none of the services described in these particulars have been tested by ourselves. We present these details of the property in good faith and they were accurate at the time at which we inspected the property. These particulars, whilst believed to be accurate are set out as a general outline only for guidance and do not constitute any part of an offer or contract. Intending purchasers should not rely on them as statements of presentation of fact, but must satisfy themselves by inspection or otherwise as to their accuracy. No person in this firms employment has the authority to make or give any representation or warranty in respect of the property. VIEWING ARRANGEMENTS To arrange an appointment to view this property, please contact us on 0191 4648880, hours are Monday to Friday 9.00a.m. to 5.00p.m, Saturday 9.00a.m. to 12.00p.m

Property Information
The following information should be read and considered by any potential buyers prior to making a transactional decision.
SERVICES:
We are advised by the seller that the property has mains gas, electricity, water and drainage.
MAINTENANCE/SERVICE CHARGES- No
WATER METER- No
PARKING ARRANGEMENTS: Double Garage, Mutli Car Driveway
BROADBAND SPEED: No issues reported by vendor. The maximum speed for broadband in this area is shown by inputting the postcode at the following link here> Broadband Speed Checker - UK's No.1 Broadband Speed Test
ELECTRIC CAR CHARGER- Yes
MOBILE PHONE SIGNAL: No known issues at the property
NORTH EAST OF ENGLAND- EX MINING AREA: We operate in an ex-mining area. This property may have been built on or near an ex-mining site. Further information can/will be clarified by the Solicitors prior to completion.
The information above has been provided by the seller and has not yet been verified at this point of producing this material. There may be more information related to the sale of this property that can be made available to any potential buyer.